建筑工程学院2017级建筑装饰工程技术专业按照人才培养方案的安排,第13周结束了《建筑装饰工程招投标与合同管理》、《建筑装饰设计原理》、《水电暖安装》三门专业课程的学习。为了提高学生对于装饰图纸的识图能力,组织学生开展装饰图纸识图实训。
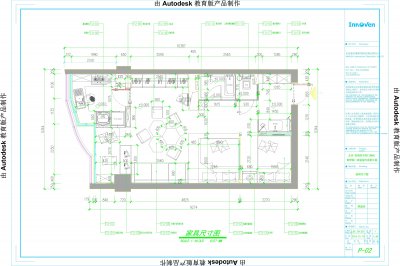
图纸的选取来源于真实案例,结合到教学的典型及难易度要求,图纸最终选取的是学院2015级学生提供的北京西城区手帕口南街朗琴园一居室室内装修工程图纸。识图的实训以学生利用AutoCAD抄绘图纸来进行,通过抄绘一居室室内装修平面图、立面图及节点详图,不仅能训练学生对AutoCAD软件的应用能力,还能在抄图的过程中加强对图纸内容的掌握。学生通过对完整装饰工程图纸的抄绘,能进一步理解装饰设计原理及规范,提升识图装饰图纸的能力。(文:管丽攀)


